The Parish Council have been notified about two potential new housing developments for Sutton Benger. It is early days, but it was felt that the details should be shared with the wider community.
The proposed developments are:
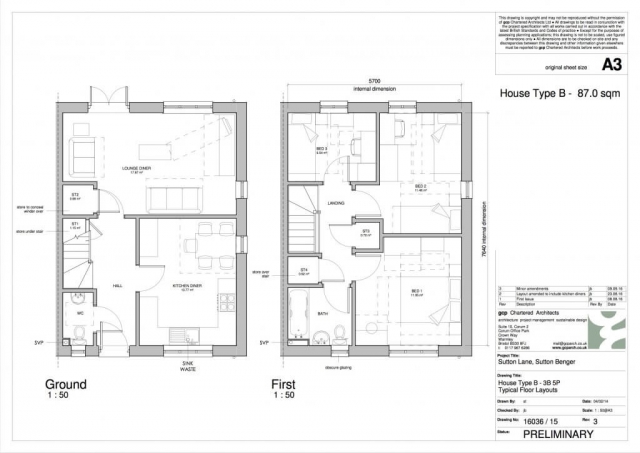
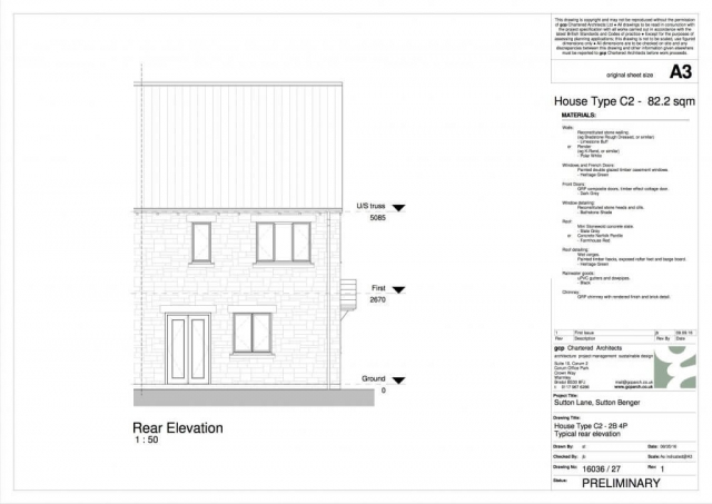
- The Stonewater development is to the East of Sharplands and is for 14 houses
- The Persimmon Homes development is to the South of the Recreation Ground and is for approx. 60 houses
We have received outline details of both developments – see below.
In both cases you are able to download a zipped file containing the PDF files that the Parish Council has been provided with.
We will update this post, so check back for more news as we receive it.
Stonewater Development Plans
Download all plans in PDF format as a single zip file (4.8Mb)
Persimmon Development Plans
Download all plans in PDF format as a single zip file (1Mb)














